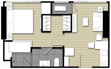
• entrance
  • livingroom
  • dressingroom
  • bedroom
  • bedroom2
  • bathroom